Description
Bien
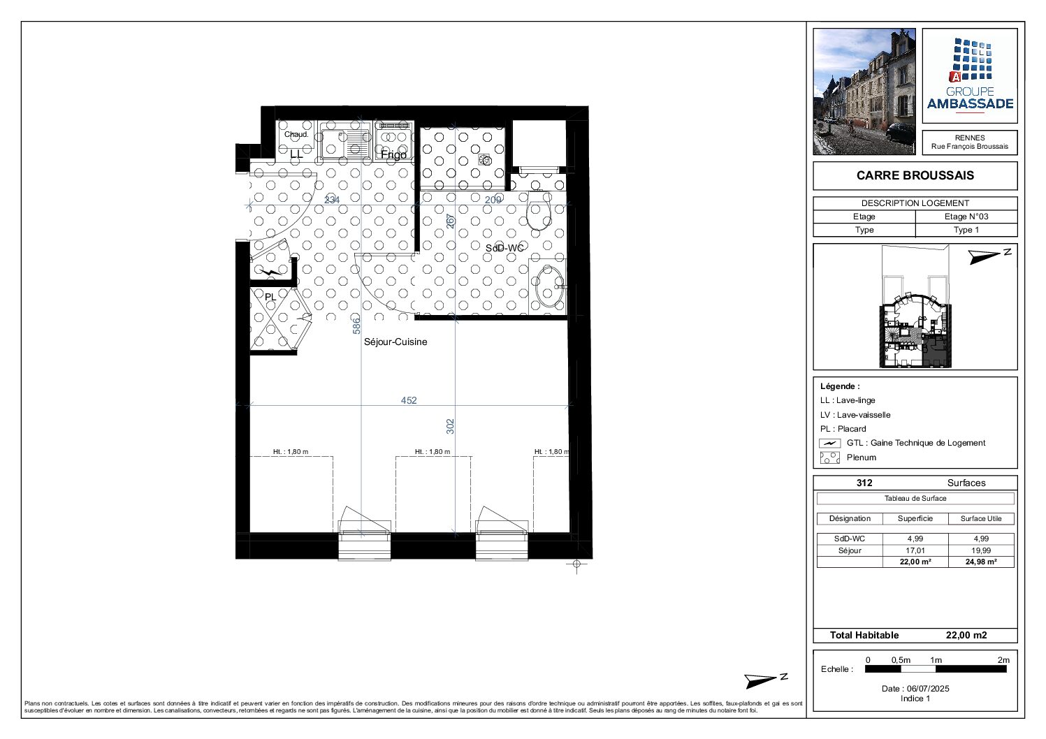
Appartement T1 neuf de 22m², situé au 3ème étage, orientation est, offrant un agencement optimal sans aucune perte d’espace. Baigné de lumière grâce à de multiples ouvertures, il se distingue par sa façade arrondie au design contemporain. Les volumes sont parfaitement équilibrés, alliant fonctionnalité et esthétisme. Chaque détail révèle des prestations haut de gamme, immédiatement perceptibles dès l’entrée. Une adresse rare, alliant confort, modernité et élégance.
Résidence
CARRE BROUSSAIS – Le privilège discret d’un bien rare en cœur de ville.
À seulement quelques pas de la très prisée place Hoche, dans un secteur résidentiel côté et confidentiel du centre historique de Rennes, se niche une opportunité immobilière CARRE BROUSSAIS une résidence intimiste de seulement 14 logements du T1 au T2 en duplex.
Une adresse confidentielle au fort potentiel patrimonial : Situé dans un secteur à très forte tension locative, à proximité immédiate des grandes écoles (Sciences Po Rennes, IGR-IAE, Faculté de droit, IPAG…) et des lignes de métro A et B, CARRE BROUSSAIS offre un emplacement central d’exception.
À deux pas du parc du Thabor, des commerces de qualité et des lieux culturels, il incarne le parfait équilibre entre vie citadine et sérénité résidentielle. Une réalisation à l’esthétique soignée et pérenne :
Chaque appartement a été conçu dans un esprit de confort durable et de qualité, avec une attention particulière portée aux détails :
• Parquet élégant dans les pièces à vivre et les chambres.
• Carrelage 60×60 cm dans les espaces cuisine et salle d’eau pour une
touche contemporaine et facile d’entretien.
• Salles de bain raffinées, équipées de faïence grand format et WC
suspendus.
• Cuisines haut de gamme, sélectionnées auprès d’un cuisiniste, alliant
design et matériaux de qualité.
• Jardins privatifs paysagés pour les appartements en rez-de-jardin.
• Parties communes élégantes, visiophone et deux grands locaux vélos
sécurisés.
Un placement pérenne, un bien de caractère : CARRE BROUSSAIS est un bien rare, idéalement situé proche des établissements d’enseignement supérieur. Sa conception soignée et son nombre limité de logements en font une opportunité patrimoniale et locative sécurisée.

